FLOOR PLAN / LAYOUT

KITCHEN

SOLUTIONS

Below you will find some examples of common layouts for temporary kitchens. Due to the modular construction of the (NxtGen) kitchen units, a kitchen can be completely tailored to your wishes. This includes the type and layout of kitchen equipment, but also the placement of walls, passageways and doors.

 

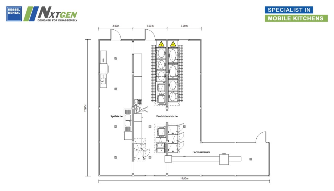
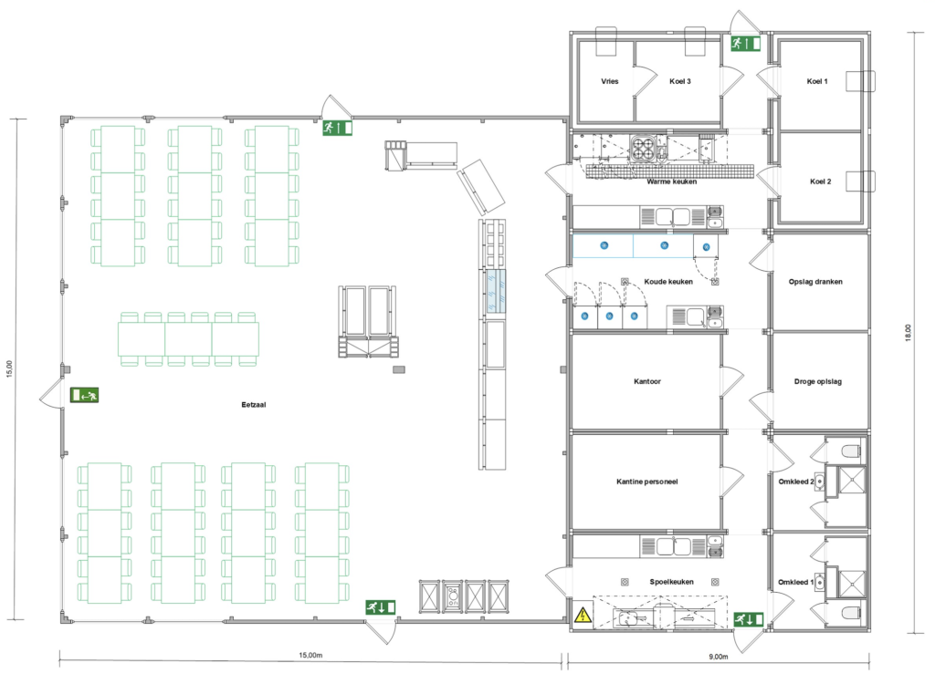
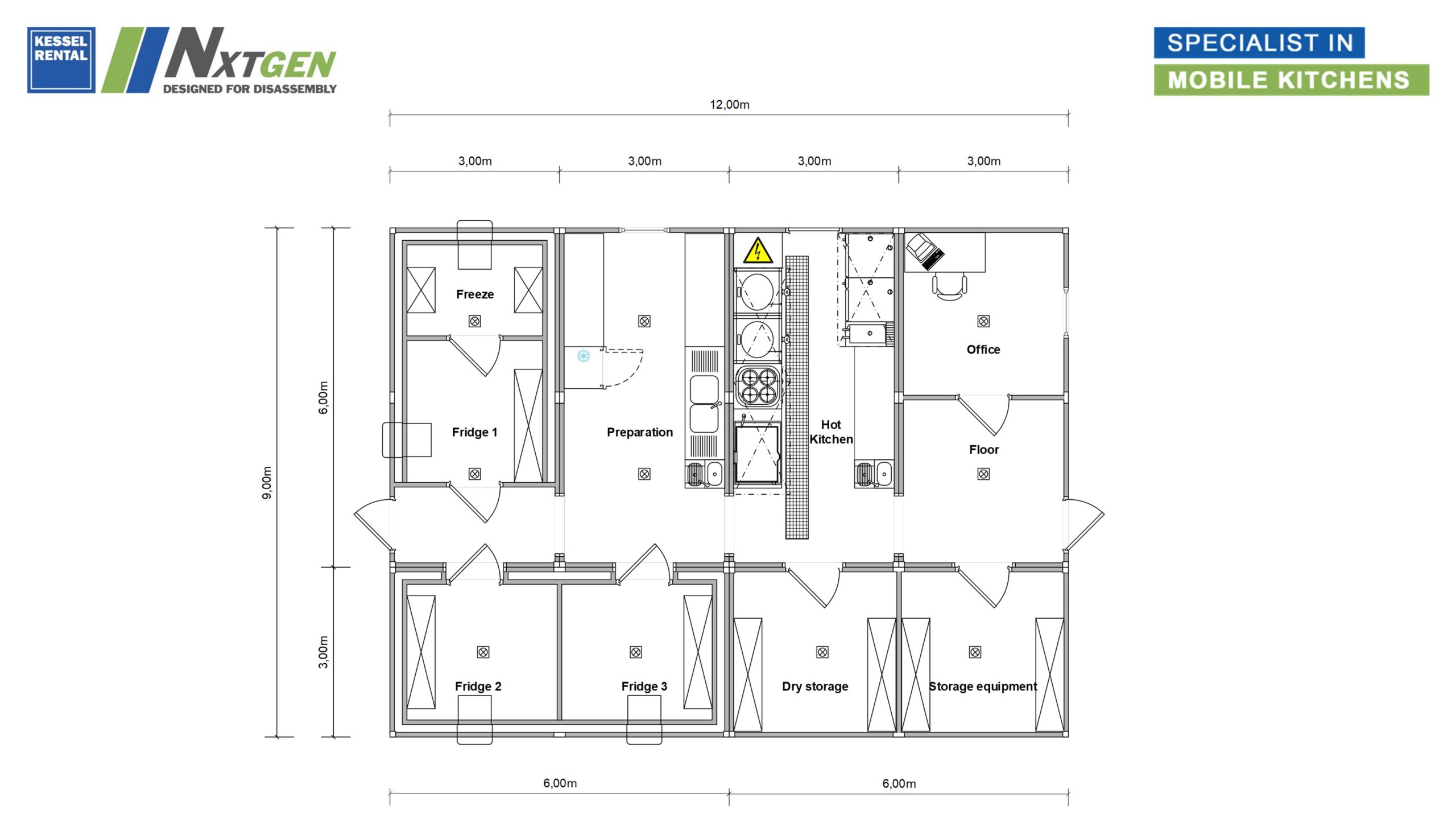
Various example kitchen layouts are shown, ranging in size from a single kitchen unit (18m2) to a fully modular commercial kitchen of 18 units (324m2). The last example is a temporary kitchen of 9 units (162 m2) combined with a temporary modular restaurant of 225m2.

Please feel free to contact us to discuss your wishes and options for a tailor-made temporary kitchen facility.

 

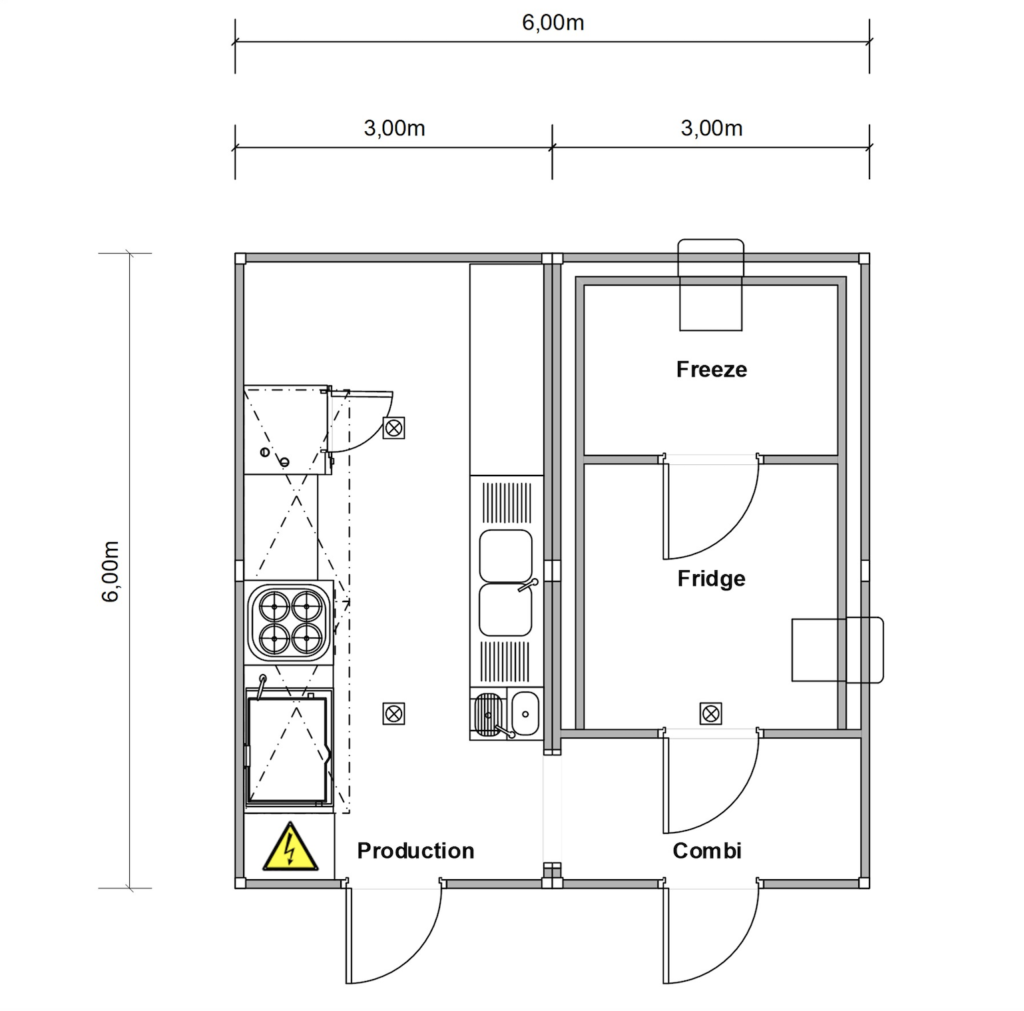
TEMPORARY KITCHEN – 1 UNIT

18M²

 

36M²

 

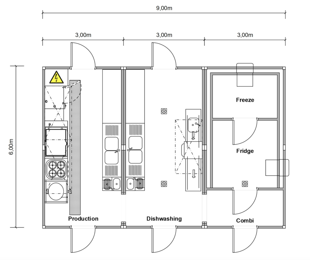
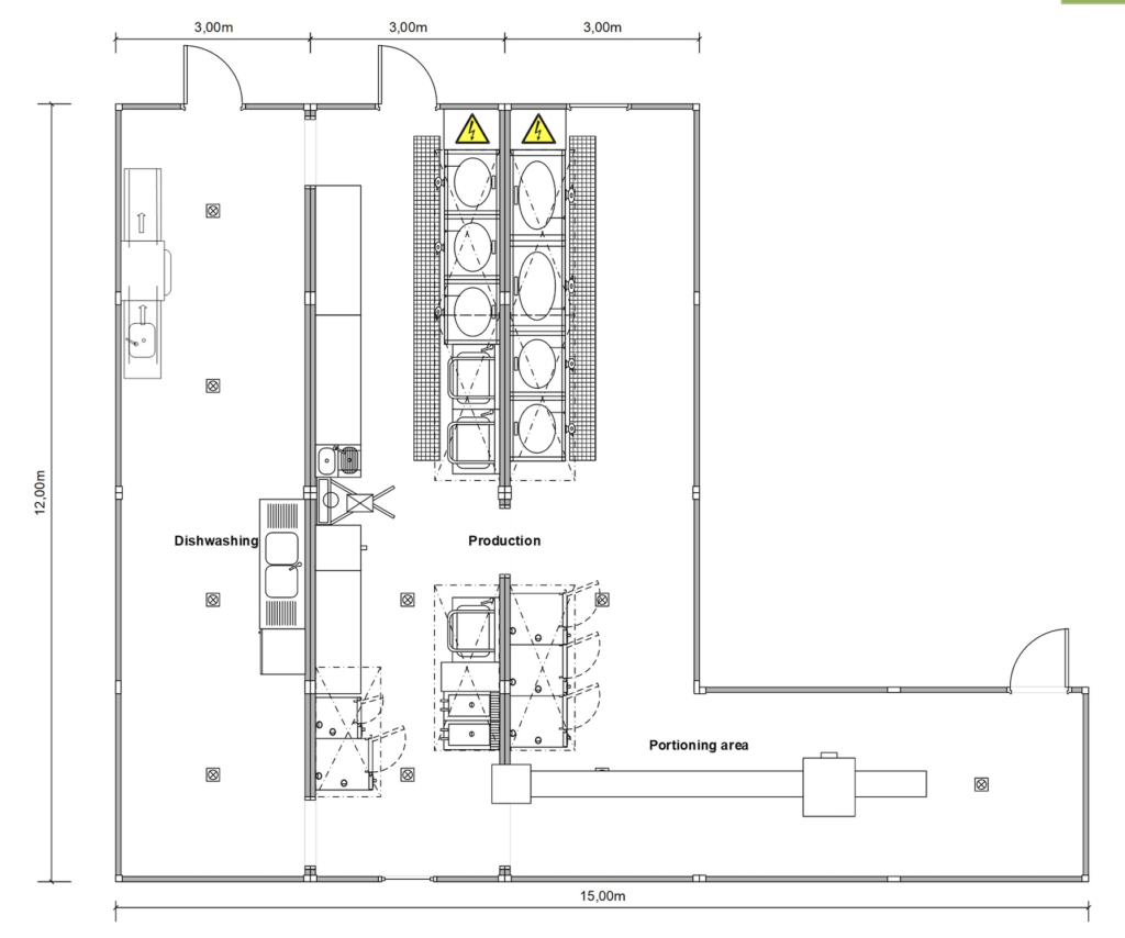
TEMPORARY KITCHEN – 3 UNITS

54M²

 

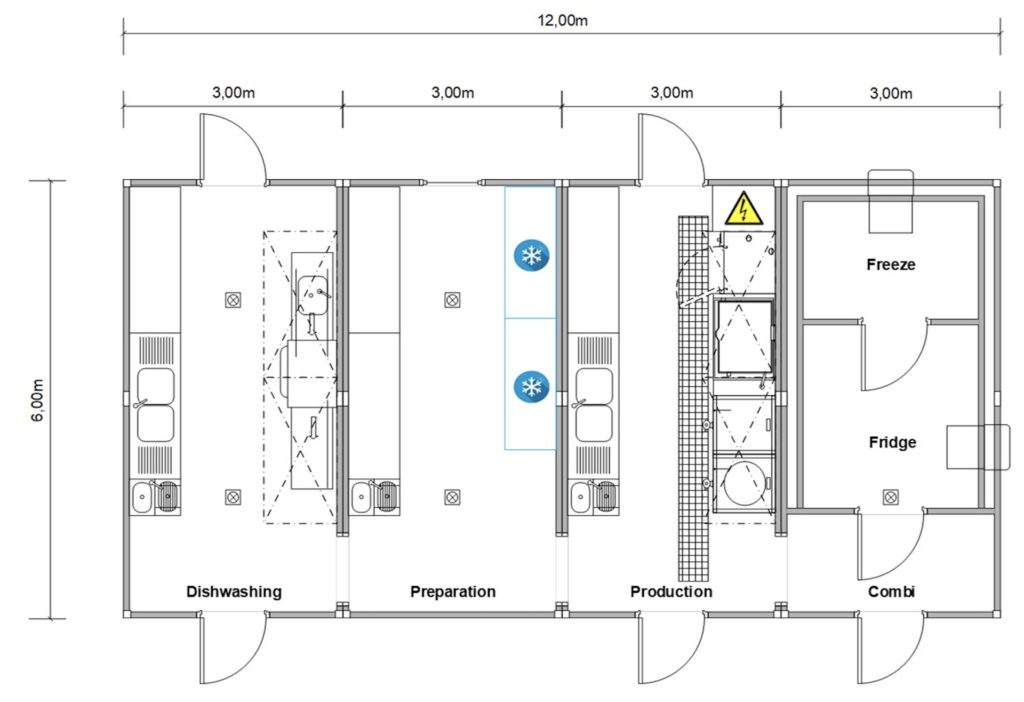
TEMPORARY KITCHEN – 4 UNITS

72M²

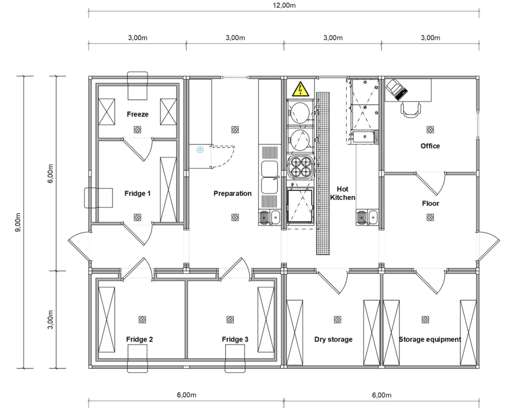
TEMPORARY KITCHEN – 5 UNITS

90M²

 

TEMPORARY KITCHEN – 6 UNITS

108M²

TEMPORARY KITCHEN – 7 UNITS

126M²

TEMPORARY KITCHEN – 18 UNITS

324M²

TEMPORARY KITCHEN AND RESTAURANT

387M²

FOR MORE INFORMATION OR TO VIEW OTHER FLOOR PLANS?

 

Please send an email to


info@kesselrental.com

THE PATH TO YOUR
SOLUTION IS HERE